Bodega del Narcea

Jose Ramón Puerto
Obra:  Bodega del Narcea
Arquitecto:  Puerto & Sánchez Arquitectos / José Ramón Puerto Álvarez y  María de los Ángeles Sánchez Sánchez
Localidad:  Las Barzaniellas
Ayuntamiento:  Cangas del Narcea
Año:  2004
Geolocalización:  43.161-6.543
Otros Datos:
Premios:
Publicaciones:
Información en la red: 
Descripción del proyecto:
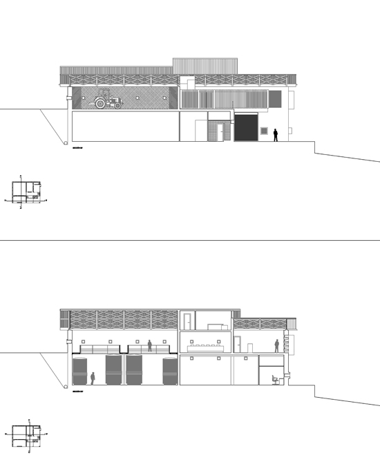
 Un edificio industrial, que juega con formas y materiales tradicionales.Un volumen prismático con cubierta de pizarra elevada sobre rastreles de madera y dividida en tres de dos aguas cada una de ellas, permitiendo alzarse una parte sobre el resto (lugar que alberga despachos).El volumen cerrado debido a su uso posee huecos geométricos con marcos prefabricados en los de gran tamaño y de pizarra en los pequeños, pero todos quedan remarcados con respecto al acabado exterior.Los interiores siguen buscando los materiales tradicionales y nobles por lo que se usa también madera, tanto para acabados como para la estructura de la cubierta.Omar Ro.Ma.
Reportaje fotográfico:  Jose Ramón Puerto Álvarez
Planos: Puerto & Sánchez Arquitectos

 

Authors
Top