Jose Ramón Puerto
| Obra: | Tanatorio del Suroccidente |
| Arquitecto: | Puerto & Sánchez Arquitectos / José Ramón Puerto y Ángeles Sanchez |
| Localidad: | Cangas del Narcea |
| Ayuntamiento: | Cangas del Narcea |
| Año: | 2003 |
| Geolocalización: | 43.185 -6.543 |
| Otros Datos: | ||
| Premios: | ||
| Publicaciones: | ||
| Información en la red: | ||
| Descripción del proyecto: Puerto & Sánchez Arquitectos | ||
|
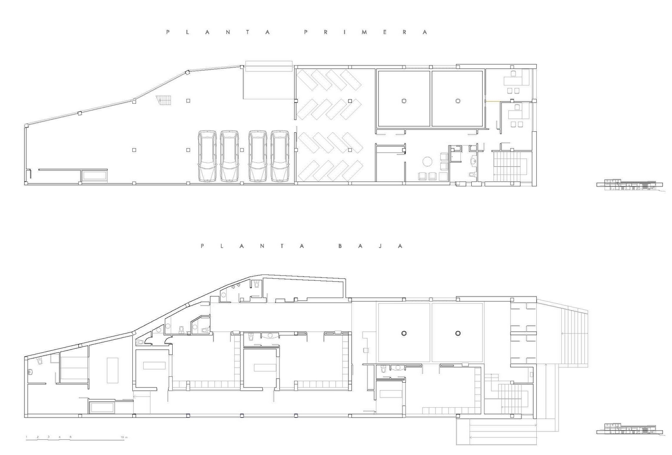
Si al realizar una obra de nueva planta el lugar es fundamental en la génesis del proyecto en un proyecto en el que se interviene en algo construido el contenedor existente determina las acciones a realizar en gran medida. En el caso del edificio dónde se actuó para realizar el Tanatorio del Suroccidente en el Reguerón, Cangas del Narcea, la construcción se había pensado para albergar las instalaciones de un taller mecánico, siendo el suelo de la planta baja un plano inclinado en toda su longitud y realizándose una estructura de pilares que permitiera la circulación de vehículos y el estacionamiento de los mismos para las labores de mantenimiento oportunas, aunque viendo el ritmo y separaciones de los mismos parece que se hubiera optado más por criterios de economía constructiva que de funcionalidad. La fachada de acceso constaba de amplios portones y acceso peatonal a las oficinas situadas en un cuerpo volado situado en la primera planta, coronado todo ello por una cubierta a dos aguas de chapa galvanizada. El aspecto era fiel a la función, con aspecto de nave industrial, algo que se debería modificar atendiendo al nuevo uso. En cuanto a los requerimientos funcionales solicitados eran los propios de este tipo de establecimientos, debiendo constar la distribución final con tres salas de recepción con sus respectivos túmulos y un aseo exclusivo para la familia en cada una de las salas. Completaban el programa de necesidades: oficinas, sala de exposición, aparcamiento para vehículos funerarios, montacargas, sala de tanatopraxia, aseos, vestuarios para el personal y almacenes. Al ser un edificio de una cierta longitud (46 m de fondo) se optó por colocar dos de las salas en el eje del edificio, encajándolas entre la estructura existente, separando así las circulaciones de público en general de la del personal del tanatorio. La tercera sala que, en principio, sería la que tendría mayor uso, se sitúa próxima a la entrada, disponiendo previo a la sala de un espacio de vestíbulo en doble altura que se piensa como ágora, como plaza interior, lugar en el que las personas que vayan a ofrecer sus condolencias a las familias puedan permanecer con éstas o con amistades sin necesidad de estar en el espacio de la sala reservada a la familia. Se procedió para ello a la demolición de parte del forjado de la planta primera y la eliminación de uno de los pilares que coincidía en el centro de la sala, apeando la estructura y colocando nuevos pilares en los muros que sustituyeran el trabajo estructural de aquel. Los pilares del vestíbulo al pasar a tener doble altura adquirían una proporción excesivamente esbelta que se compensó realizando unos nuevos pilares de sección circular en torno a los existentes de sección cuadrada. Estos cilindros que se forraron en acero inoxidable no toman toda la altura, apreciándose los existentes en la parte más alta, lo que produce un efecto telescópico que se remata con dos planos de proporción cuadrada donde se colocan luces perimetrales y que se leen como un paraguas o abrigo de quien se sitúa bajo ellos. En el pasillo de acceso de público a las dos restantes salas hubo que lidiar con otra preexistencia: la rampa de acceso de vehículos a la planta superior desde un camino exterior cruzaba en mitad de ese espacio. Haciendo del problema virtud se propone para ese techo un juego de planos inclinados que hacen que la problemática rampa quede integrada entre ellos. Tanto en las salas como en el vestíbulo se disponen unos pavés traslúcidos de 30 x 30 cm que permiten dar una luz blanca a los espacios, ocultando vistas indeseadas del exterior. El pavimento del suelo, mármol combinado con terrazo micrograno en color verde oscuro, se prolonga en las paredes hasta la altura de 1 m, enrasándose con las cargas de yeso para evitar depósitos de suciedad y facilitar, así, el mantenimiento de una zona con muchos requerimientos. En la fachada de acceso se recrecen los planos de cierre de la misma hasta superar la cubierta existente, permitiendo ofrecer una imagen más adecuada a las características del edificio. En el paramento de acceso se propone una asimetría donde la superficie opaca, revestida de granito gris, ocupa una mayor proporción que la acristalada, la cual se resuelve con cuatro grandes huecos dónde la carpintería se realiza de suelo a techo, lo que permite marcar el forjado y la separación de accesos y oficinas, marcándose una cruz como pequeño guiño testimonial. Un plano exento situado delante del edificio permite disponer una rampa por uno de sus lados y una escalera por otro, salvando así la altura que fue necesario regularizar respecto de las cotas iniciales del edificio.
|
||
| Reportaje fotográfico: Puerto & Sánchez Arquitectos | ||
| Planos: Puerto & Sánchez Arquitectos | ||










