Velatorio de Jove

23

Héctor Santos Díez
Obra:  Velatorio de Jove
Arquitecto:  AE Arquitectos / Alfredo Estébanez García y Eduardo García Díaz
Localidad:  Gijón
Ayuntamiento:  Gijón
Año:  2015
Geolocalización:  43.551, -5.700
Otros Datos:
Premios:
Publicaciones:
Información en la red: 

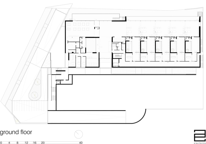
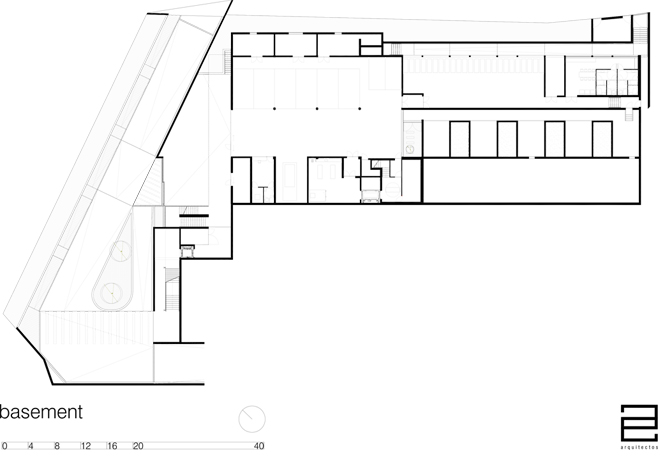
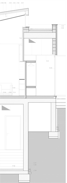
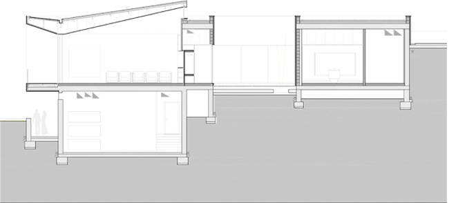
Descripción del proyecto:  AE Arquitectos
.El velatorio se concibe como un volumen regularmente perforada por una serie de patios y establece diferentes relaciones en la manera en que se asienta en el terreno. En la parte alta de la parcela, el proyecto pretende integrarse completamente con el entorno, por este motivo, el volumen está casi enterrado, mostrando únicamente la vegetación que lo cubre permitiendo así que pase desapercibido en el área. En cambio, desde la parte más baja de la parcela el proyecto se percibe como si este volumen alargado estuviese suspendido.El volumen principal descansa sobre otro volumen que sale del suelo, el cual alberga la parte pública del programa, mientras que el volumen más bajo es de uso privado. La diferenciación entre los dos volúmenes es también evidente en su materialización. En el volumen superior se usa un acabado blanco y liso, para hacer de esta una pastilla más intangible, mientras que el volumen bajo es concebido como algo tectónico, por tanto el material usado es oscuro y texturizado. En el volumen principal cabe destacar la presencia de un gran voladizo, que disfruta de las mejoras vistas.La sostenibilidad del edificio era un tema importante, tema que se tiene en cuenta en todas las decisiones del proyecto. De este modo, el edificio es compacto y está parcialmente enterrado, no solo para mejorar su integración en el entorno, sino también para aumentar su inercia térmica. Los patios abiertos hacia el norte son usados para introducir luz y ventilación natural, reduciendo la cantidad de climatización mecánica. Así, el resultado es un edificio más eficiente energéticamente que mejora el confort de los usuarios.
Reportaje fotográfico: Héctor Sántos Díez
Planos: AE Arquitectos

 

Authors
Top