Adolfo Fernández
| Obra: | Vivienda Unifamiliar en Cefontes |
| Arquitecto: | Estudio Roble/ Joaquín Rubiera Sáez|Joaquín Nosty Secades |
| Localidad: | Cefontes | Cabueñes |
| Ayuntamiento: | Gijón |
| Año: | 2012 |
| Geolocalización: | 43.518, -5.611 |
| Otros Datos: | ||
| Premios: | ||
| Publicaciones: | ||
| Información en la red: | ||
| estudioroble.com | ||
| Descripción del proyecto: Joquín Rubiera | Joaquín Nosty |
||
|
Se trata de una edificación de planta irregular que consta de dos plantas y sótano.
El acceso a la vivienda en planta baja está definido por un volumen que sobresale del plano de fachada y adquiere un giro respecto a la alineación de dicha fachada. Entramos a un amplio vestíbulo presidido por la escalera que da acceso a la planta sótano y planta primera. Desde el vestíbulo tenemos acceso hacia la zona de dormitorios en el ala este de la vivienda formado por dos habitaciones, una orientada al norte y otra al sur, con sus respectivos baños incorporados. La habitación que da al sur tiene salida directa al exterior a través de un porche. En el ala oeste se ubica orientado al norte una zona de servicio compuesta por cuarto de lavado, aseo y ropero; y orientado al sur una amplia cocina comunicada directamente con el salón-comedor que ocupa toda la zona central de la vivienda. El salón-comedor y la cocina tienen salida directa al exterior a través del mismo porche.
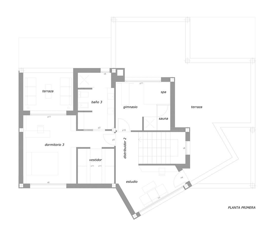
En planta alta desembarcamos en un pequeño distribuidor que nos lleva al sur hacia el gimnasio comunicado con una amplia terraza orientada al sur-oeste; al norte y ocupando el mismo volumen que el acceso de planta baja nos encontramos un estudio; y al este el dormitorio principal con vestidor y baño incorporados y salida a una terraza orientada al sur.
En el sótano se aloja la zona de garaje y sala de calderas d ebajo del ala oeste de la vivienda.
|
||
| Reportaje fotográfico: Adolfo Fernández | ||
| Planos: Estudio Roble | ||

















