Refugio Arquitectura
| Obra: | Vivienda unifamiliar en Valles |
| Arquitecto: | Refugio Arquitectura / Luis Álvarez y Rubén Álvarez |
| Localidad: | Valles |
| Ayuntamiento: | Piloña |
| Año: | 2015 |
| Geolocalización: | 43.367 -5.312 |
| Otros Datos: | ||
| Premios: | ||
| Publicaciones: | ||
| Información en la red: | ||
| Descripción del proyecto: Refugio Arquitectura | ||
| La Arquitectura tímida:Últimamente, al menos en nuestro caso, la arquitectura se reduce a una eterna batalla entre el cliente, la omnipresente normativa, el constructor y la ineludible ley de la gravedad edilicia: El dinero.
El arquitecto es aquí el moderador, el garante de un acuerdo entre las partes que logre una armonía que dé paso al surgimiento de la arquitectura. Ésta sólo emergerá después de la lucha entre los elementos antes mencionados, en la que muchas veces quedan demasiadas víctimas por el camino, que acaban lastrando el resultado final…. Ante todo, y como primer paso, debemos ganarnos la confianza del cliente, y a partir de ahí, conocerlo, entenderlo, y guiarlo hasta lograr construir aquello que realmente necesita: Una casa es donde se vive, el caparazón bajo el que habita una familia. Los arquitectos lo usan para describir un edificio y eso ha distorsionado lo que es una vivienda. Lo que hay que hacer es tomar ese lugar al que da sentido una familia y tratar de ver con ellos cómo mejorarlo. De ahí arrancamos. Partimos del hecho humano, del grupo. Con esta premisa como base, analizaremos después el lugar, el universo particular donde se va a asentar su casa. En este caso, se nos impone un espacio natural desbordante, en pendiente, con un entorno rural (armónico y proporcionado) detrás, al Norte, por donde también discurre el camino -la conexión de la casa con el mundo- y un marco paisajístico excepcional (Picos de Europa) delante, al Sur. Tímidamente, sin ofender, la casa se asienta en la pendiente, adaptándose a ella, cerrándose al Norte y protegiéndose de las vistas ajenas y de las condiciones climáticas más duras, pero mostrando a su vez su respeto al jugar con las proporciones y los materiales del entorno: Piedra, madera y teja. Sin embargo, al Sur, la casa se abre sin miedo, recibiendo de lleno la luz del Sol y enmarcando las vistas de la cordillera. Este ejercicio de adaptación al lugar incluye a su vez un esfuerzo por el ahorro energético y la sostenibilidad mediante el diseño pasivo ( orientación, ventilación cruzada, gruesos muros, materiales naturales y reciclables…) y el activo (Suelo radiante, potentes aislamientos, bomba de calor de alta eficiencia….) |
||
| Reportaje fotográfico: Refugio Arquitectura | ||
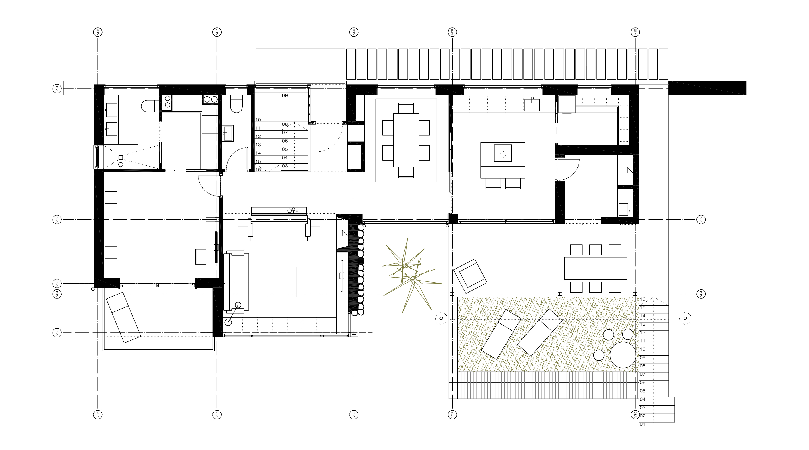
| Planos: Refugio Arquitectura | ||













