| Obra: | Viviendas sociales mineras |
| Arquitecto: | Zon-e |
| Localidad: | Zarréu |
| Ayuntamiento: | Degaña |
| Año: | 2009 |
| Geolocalización: | 42.948,-6.485 |
| Otros Datos: | ||
| Premios: | ||
|
||
| Publicaciones: | ||
|
||
| Información en la red: | ||
|
||
| Descripción del proyecto: | ||
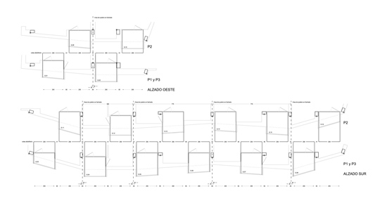
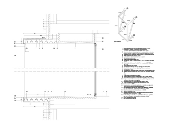
| «El proyecto surge de un concurso para la edificación de viviendas de protección oficial en Cerredo (Asturias), poblado minero situado en plena Cordillera Cantábrica y donde no se había realizado ninguna construcción residencial desde hace más de 25 años.El proyecto consta de dos fases, materializadas en sendos edificios situados perpendicularmente entre sí formando una L. En la primera fase se acomete el edificio de mayor presencia, orientado hacia la carretera que atraviesa el pueblo.La volumetría propuesta tiene un perfil anguloso. Se trata de una geometría cristalizada a partir de unas leyes elementales, que surgen de la propia normativa urbanística. El resultado formal se halla a medio camino entre un objeto petrificado, una silueta montañosa y un inquietante organismo flotando sobre la ladera. Este objeto “cristalográfico” es del color oscuro de la pizarra de la zona. Como una piedra de carbón, absorbe casi toda la luz que le llega, reflejando una pequeña parte, y mostrando de forma serena su rica geometría.La unidad del edificio contrasta con la individualidad de cada una de las 15 viviendas que asoman a través de unas galerías sobre la fachada. Se trata de unos cubos que perforan el volumen de las tres plantas al tresbolillo y que trabajan como intercambiadores térmicos y lumínicos.Todas las viviendas son diferentes, ya sea por su tamaño o distribución en planta, por la localización de su galería o por la configuración de sus techos, pero todas disfrutan de ventilación cruzada y de unas magníficas vistas al paisaje escarpado de Asturias.El carácter objetual del proyecto se acentúa gracias al tratamiento de la planta baja, ya que ésta se retranquea a lo largo de todo el perímetro reforzando la idea de ‘cuerpo flotante»Rafael Ruiz Esquiroz ¦ ruizesquiroz.com |
||
| Reportaje fotográfico: plataformadearquitectura.cl | ||
| Planos: plataformadearquitectura.cl | ||














