Kike Llamas
| Obra: | Oficina de ARQUIA en Gijón |
| Arquitecto: | Rubio Bilbao Arquitectos / Miguel Rubio e Izaskun Bilbao |
| Localidad: | Gijón |
| Ayuntamiento: | Gijón |
| Año: | 2015 |
| Geolocalización: | 43.541 -5.660 |
| Otros Datos: | ||
| Premios: | ||
|
||
| Publicaciones: | ||
| Información en la red: | ||
| Descripción del proyecto: Rubio Bilbao Arquitectos | ||
| El diseño de esta oficina bancaria situada en el centro de Gijón es obra de los arquitectos Izaskun Bilbao del Olmo y Miguel Rubio Álvarez (Rubio Bilbao Arquitectos). El proyecto resultó ganador del concurso convocado por la entidad, al que se presentaron más de 70 propuestas para liderar el diseño de las nuevas oficinas de ARQUIA Banca.
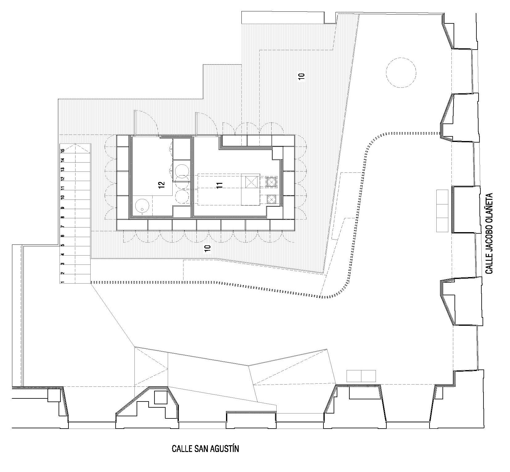
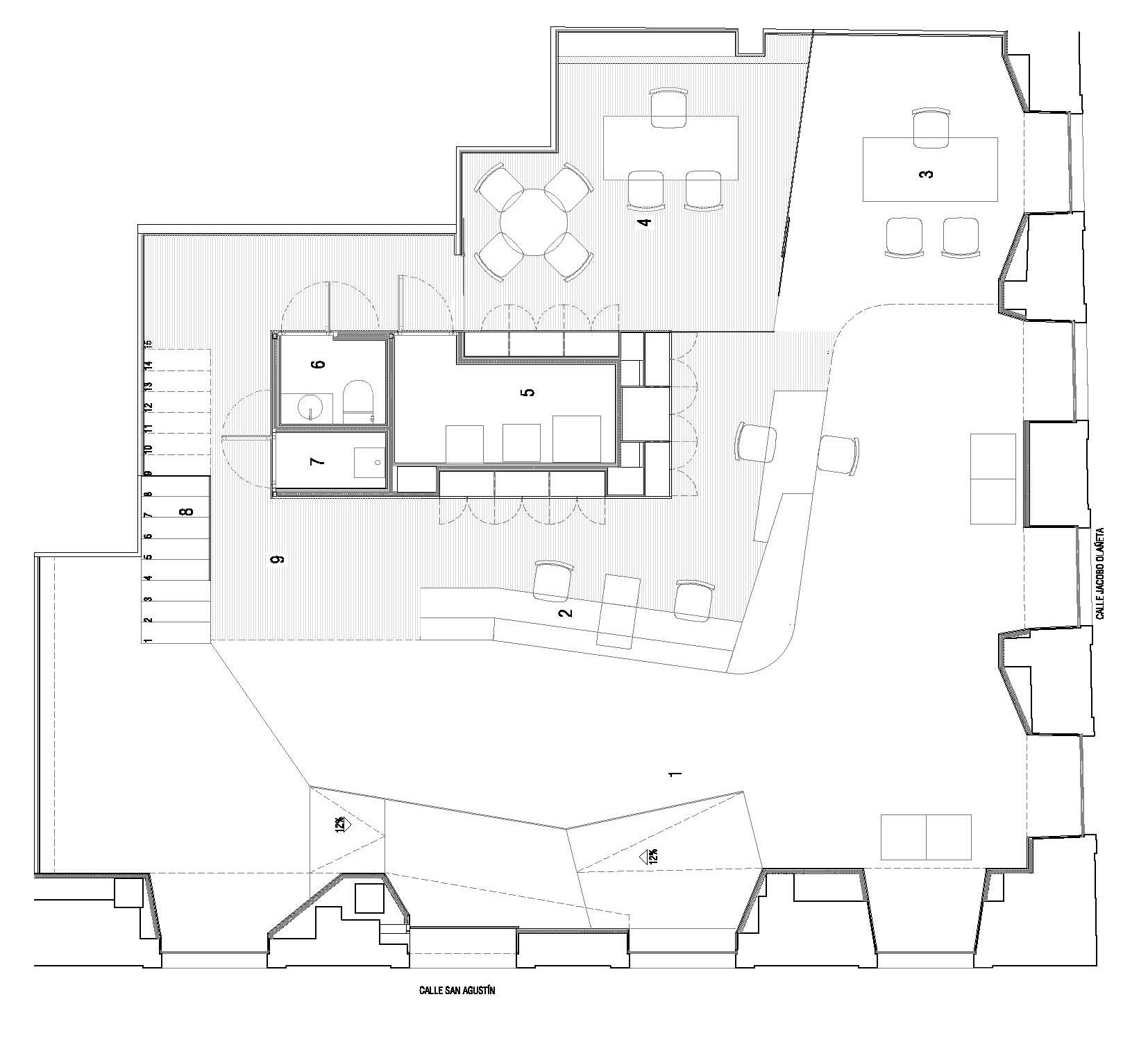
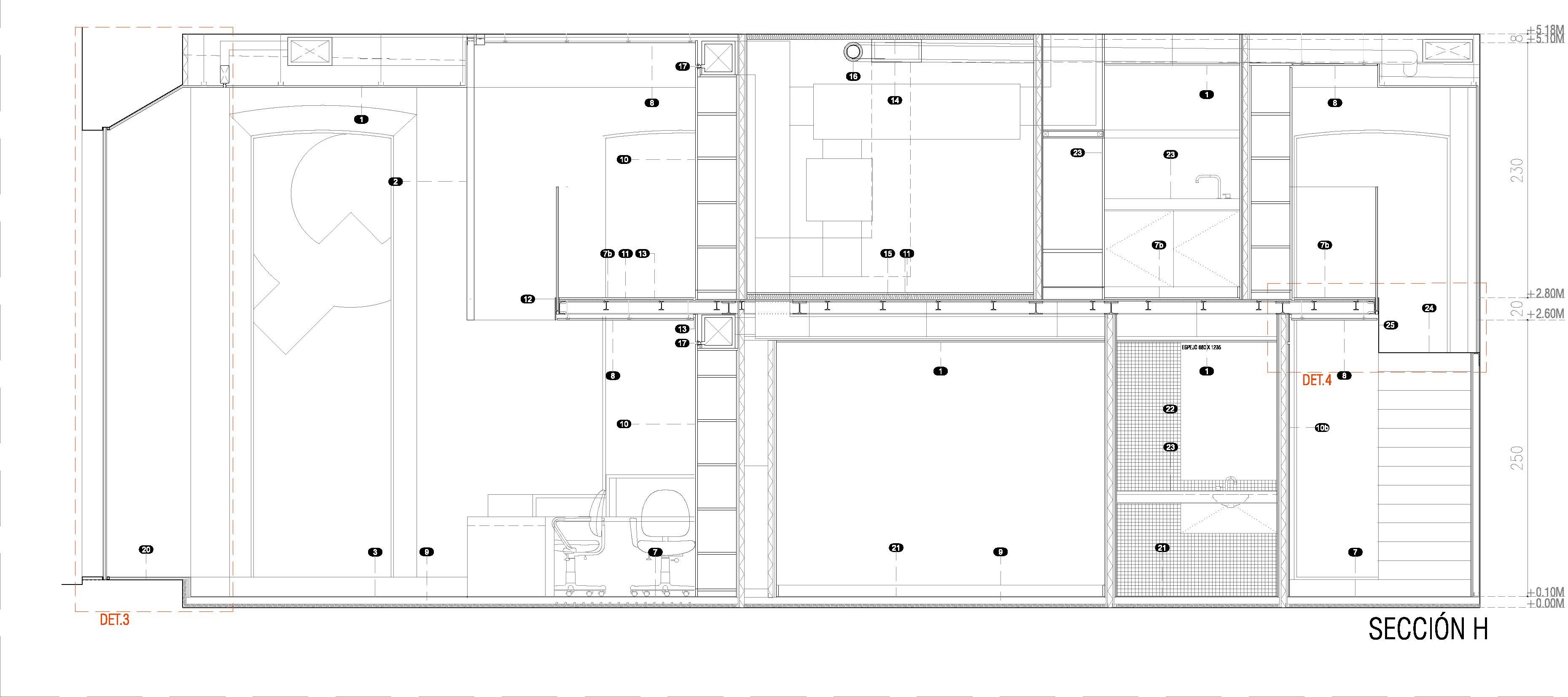
«El diseño único siempre ha sido uno de los elementos distintivos de esta entidad. Cada oficina es distinta, y eso marca la diferencia respecto a la estandarización que muestra el sector» Mariano Muixí, director general ARQUIA BANCA. El local en planta baja forma parte de un edificio de 1895 con protección urbanística que impide cualquier tipo de alteración en los huecos y color existentes. Por esta razón el proyecto se concibe como un objeto interior, independiente de la fachada y visible a través de la misma. El programa se ha organizado de forma concéntrica, generando áreas superpuestas según su carácter: público, privado y confidencial. La altura libre disponible ha permitido el aprovechamiento del espacio en vertical, ubicando en un nivel superior parte del programa y produciendo cambios de altura acordes al uso de las estancias. Tras la fachada se da paso a un ámbito amplio, luminoso y de materiales neutros que da protagonismo al área de atención: un entorno más acotado, con mayor privacidad y materiales cálidos, que integra un núcleo central solo accesible por el personal. Este núcleo a dos niveles funciona como una gran armario de madera de castaño que encierra instalaciones y estancias de uso exclusivo del personal. En el nivel inferior se sitúan el aseo, un cuarto de limpieza y el office administrativo. El nivel superior se configura como un corredor abierto que rodea el núcleo central, empleado como archivo y alojamiento de las instalaciones de climatización. La celosía suspendida cumple con la doble función de contorno delimitador y filtro del nivel superior. La madera de castaño es el material protagonista en este proyecto, aportando calidez y proximidad a modo de identidad corporativa. La climatización del local se ha integrado en el núcleo central de modo que los componentes de difusión y retorno del aire forman parte del despiece de la carpintería. |
||
| Reportaje fotográfico: Kike Llamas | ||
| Planos: Rubio Bilbao Arquitectos | ||




















