Sede del Colegio Oficial de Arquitectos de Asturias en Gijón

Ruiz-Larrea y Asociados

Obra: Rehabilitación y adecuación de la Casona de la Calle Recoletas 4 en Sede del COAA en Gijón.
Arquitecto: Ruiz-Larrea & Asociados / César Ruiz-Larrea Antonio Gómez Gutiérrez | Gonzalo Ortega Barnuevo
Localidad: Gijón
Ayuntamiento: Gijón
Año:  2005
Geolocalización:  43.545 -5.633
Otros Datos:
Premios:
Publicaciones:
Información en la red: 

Descripción del proyecto: Ruiz-Larrea y Asociados
Como un faro en la noche, como una linterna mágica, la transparencia surgida de una nueva torre de madera se posa sobre la historia de la vieja casona de la calle Recoletas de Gijón. De esta mantenemos su primera crujía por sus valores arquitectónicos, urbanos y decorativos en el interior, así como su adecuación a cualquier nueva distribución.Mantenemos el muro perimetral de la planta baja que resuelve con sus gruesas paredes las diferencias topográficas del lugar con magnífica precisión y acierto.Es el basamento fundacional que conceptual y constructivamente establece su localización en el tiempo y en el espacio. El resto es una desafortunada superposición de intervenciones incapaces de responder a los requisitos de una oficina funcional y flexible para un uso que deberá variar en tiempo (institución colegial) tal y como esta sucediendo de una manera cada vez más vertiginosa.Apostamos por un mecanismo de futuro. Proponemos una solución técnica como la única capaz de responder a nuevos programas.Técnica como herramienta de aprovechar al máximo el espacio útil, de hacerlo más flexible y optimizar mediante una clara localización del núcleo de comunicaciones una planta libre adaptable a cualquier organización interior que se quiera plantear.Técnica como mecanismo de incorporar nuevas tecnologías, cerramiento de poco grosor pero altamente especializado. No sería razonable intervenir en el interior dejando una “vieja piel” inservible, la idea nos repugna.La arquitectura, como la ciudad, es un ser vivo donde el proyecto creativo del hombre se va construyendo sobre si mismo testimoniando en cada obra su momento cultural que lo anima.Como tantas veces en la historia las arquitecturas se superponen expresando sus nuevas demandas sociales.Utilizamos la Casona como material de arquitectura quitando, añadiendo, ordenando y sustituyendo a través de la intervención los problemas de cornisas sin resolver, las distintas relaciones de altura entre los edificios colindantes, valoración de la plazuela perimetral, hitos, giros urbanos, etc… Serenidad y transparencia en los planos de fachada, materiales ligados a la arquitectura del lugar, (paseamos por el recinto histórico rodeado de miradores, añadidos, elementos volados en madera y cristal).Proponemos pues un semi-oculto CAJÓN DE SASTRE en cuyo interior la luz y el espacio nos hablan de las maravillas de la transformación acaecida.
Reportaje fotográfico: Ruiz-Larrea Asociados
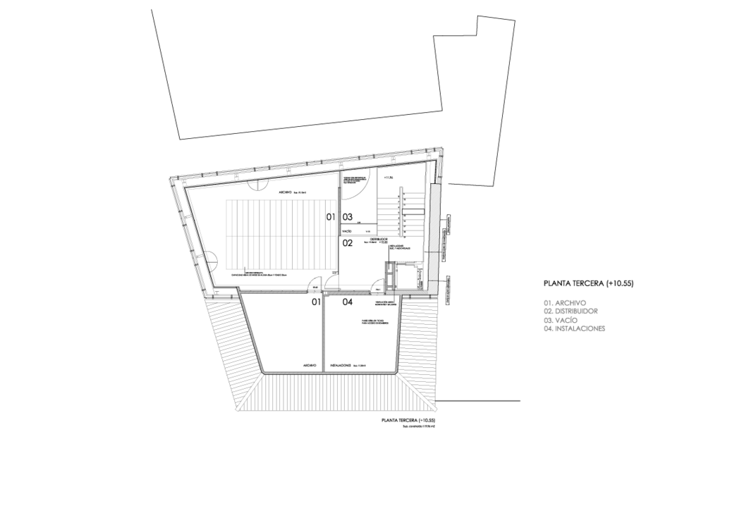
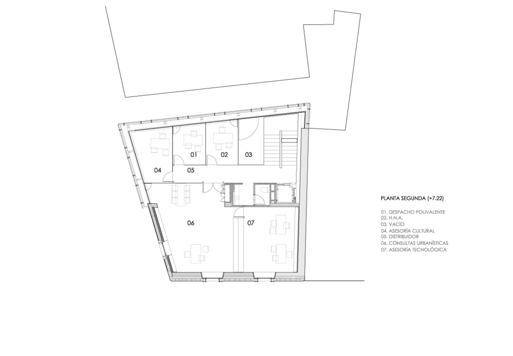
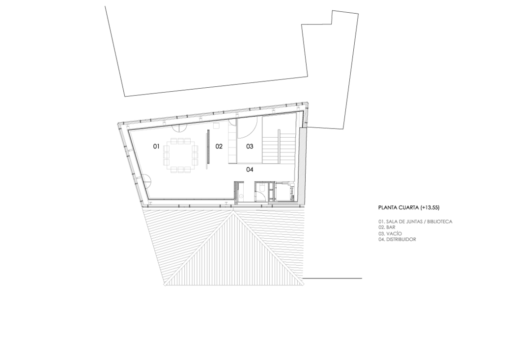
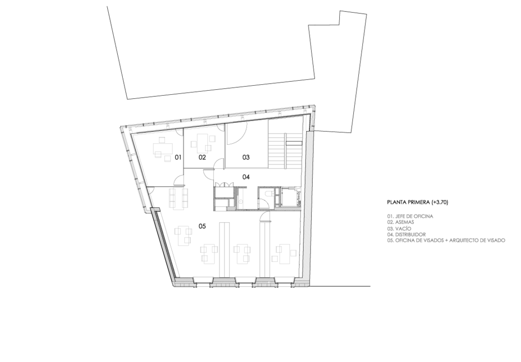
Planos: Plataforma Arquitectura

 

Related posts

Top