
Foto: Marcos Morilla
| Obra: | Centro de Interpretación Espacio Portus Asturias |
| Arquitecto: | Rogelio Ruiz+Macario G.Astorga. |
| Localidad: | Nieva, Ría de Avilés. |
| Ayuntamiento: | Avilés |
| Año: | 2016-2019 |
| Geolocalización: | 43.359- 5.927 |
| Otros Datos: | |||
| Premios: | |||
| Publicaciones: | |||
| Información en la red: | |||
| Descripción del proyecto: Rogelio Ruiz+Macario G. Astorga. | |||
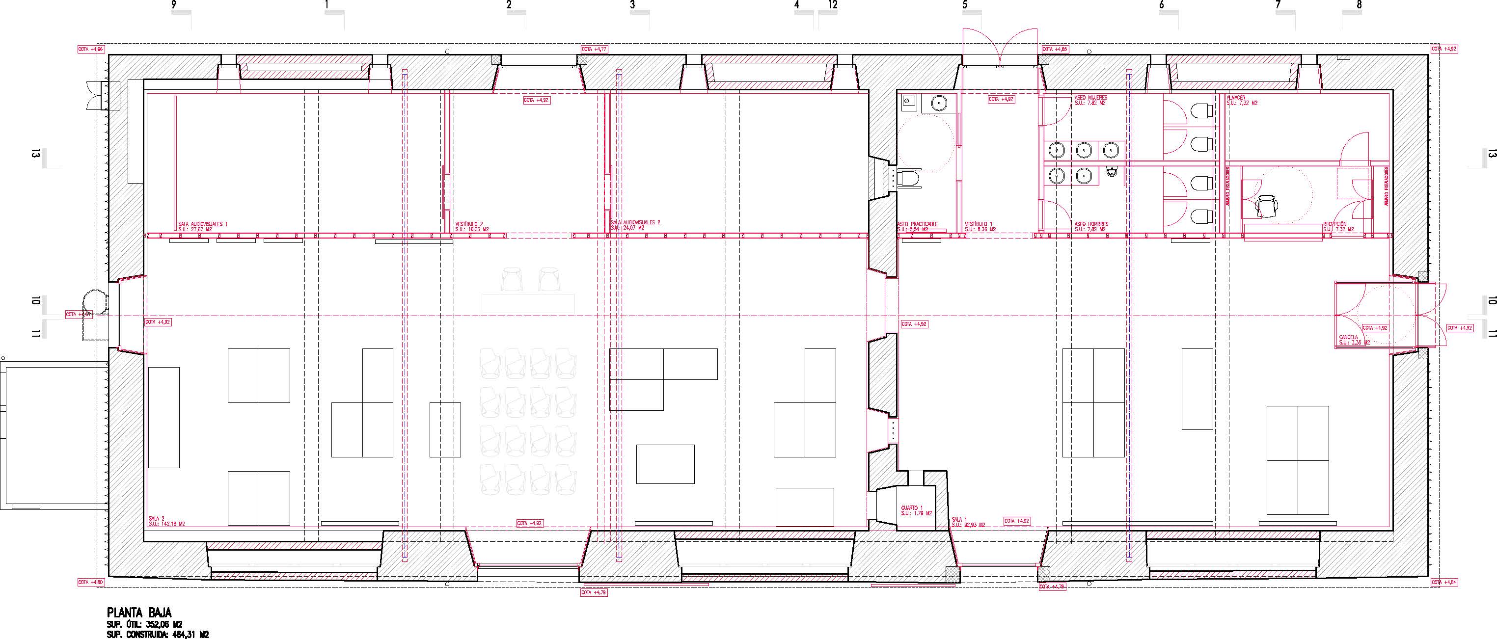
| Se trata de la rehabilitación de una nave de carpintería de ribera (taller de barcos de madera) del s. XIX muy deteriorada y alterada (en origen eran dos ahora unificadas) para albergar un espacio de recibimiento de visitantes del Puerto de Avilés, en Asturias, España. El proyecto compagina por un lado la mayor conservación del astillero, pero por otro debe garantizar una utilización óptima. Cuando decimos óptima y hablamos de exposiciones, la luz exterior suele ser un problema. Nos fuimos a una imagen más acorde con la situación primigenia que sólo tenía dos huecos al mar. Creamos una estructura metálica que desaparece ante la presencia de las viejas cerchas de madera que conservamos (colgadas de las nuevas). Cubrimos los testeros con la teja recuperada del edificio lo cual lo relaciona con otros astilleros de ribera como el del Dique en Aramar, Luanco, y también con muchas “casas mariñanas”, casas tradicionales de la rasa costera en Asturias, que se defienden con este sistema del “gallegu” (viento lluvioso proveniente de Galicia).
El proyecto se define espacialmente por tres ejes de luz: uno longitudinal en el eje de las naves y otros dos transversales que nos permiten ver el mar y recibir reflejos partidos en ciertas horas, mediodía, sobre el techo de la nave. Además un tabique de madera recorre de este a oeste la nave para esconder detrás los espacios sirvientes y también unas salas oscuras que el Ayuntamiento de Avilés solicitó para colocar holografías sobre el Cañón de Avilés (sima marina de 4750 metros próxima a este lugar). El pavimento de todo el espacio expositivo es una fotocopia gigante (en poliéster recubierto de PVC), de un plano de 1916 del puerto de Avilés que da una presencia llamativa que sin duda cautivará a las visitas colegiales. La autoridad portuaria de Avilés, con el apoyo de la Universidad de Oviedo y la coordinación del profesor Miguel Calleja, desarrolló en 2015 una exposición sobre el puerto de Avilés que se pudo ver en el Centro Internacional Niemeyer de Avilés. Su nombre fue: PORTUS, una historia sobre el puerto de Avilés. Esta ocasión sirvió como disculpa para reunir y poner en valor elementos que posee su Autoridad Portuaria y que no son visibles normalmente. Propiedad del Puerto es además el edificio de los antiguos Astilleros Ojeda y Aniceto en San Juan que se encontraban bastante deteriorado y además sin uso previsto y que además es uno de los pocos astilleros de ribera que perviven de esta época (s.XIX) ya que han ido en detrimento por el uso de nuevos materiales que han desplazado la actividad de estos. El presidente de la Autoridad Portuaria propuso unir ambas situaciones procediéndose a la restauración de estos astilleros de ribera pioneros de la actividad industrial en la ría de Avilés como contenedor perfecto para la muestra del material que nos va contando la historia de este motor, eje vertebrador de la ciudad y su industria, y de toda Asturias. |
|||
| Reportaje fotográfico: Marcos Morilla | |||
| Planos: Rogelio Ruiz+Macario G. Astorga. | |||





















